屋根面積の計算方法を分かりやすく解説!|スマホからでも求められます

あなたのお家
外壁塗装するといくら?
屋根のリフォームを検討している方は、見積書の屋根面積に対して「これが本当に適切な数字なの?」と疑問を持たれている方も多いかと思います。
そこで本記事では、屋根面積の計算方法に加え、例として図面がある場合と無い場合ごとに計算手順を分かりやすく解説しています。
図面がない場合では、グーグルマップを使った屋根面積の出し方についてご紹介していますので、お手元のパソコンやスマートフォンのみで屋根面積を出すことが可能です。
Point
屋根面積を正確に出すには図面を使う
図面がない場合はグーグルマップを使えば屋根面積を出せる
屋根面積の計算方法と確認すべき数値
屋根面積の計算式

屋根面積の計算は「屋根の投影面積」×「勾配係数」で求めることができます。
「屋根の投影」とは、屋根を真上から見下ろしたときのことです。屋根の形は様々ですが、真上から見下ろすと平面になります。この平面の状態の面積が、屋根の投影面積です。
しかし、屋根には傾斜があることが多いため、平面の面積と実際の面積には誤差があります。傾斜を考慮すると、平面の面積よりも大きくなります。
平面と傾斜の誤差は「勾配係数」という数値を使うことで解消することができます。屋根の投影面積に勾配係数をかけることで、実際の屋根面積が正確に分かるということです。
計算式はどの屋根の形でも使える
屋根の面積は、屋根の形に限らず「屋根の投影面積」×「勾配係数」で計算できます。
主な屋根の形は「寄棟(よせむね)」「切妻(きりつま)」「方形(ほうぎょう)」「片流れ」の4つですが、いずれもこの計算方法で問題ありません。
屋根の投影面積は屋根を平面で見たときの面積なので、屋根の形は関係ありません。そのため、屋根の形によって計算方法が異なることはないのです。
屋根面積の計算で確認すべき数値
屋根面積は「屋根の投影面積」×「勾配伸び率」で計算できますが、面積を出すためにはそれぞれの数値を知る必要があります。
「屋根の投影面積」は、1階部分の外壁の長さ+軒の出の長さで求めます。勾配伸び率は、あらかじめ決まった数値があるのでそれを使うだけです。
それでは、それぞれの数値についてを分かりやすくご紹介します。
1階部分の外壁の長さ
屋根の投影面積を求めるためには、まず1階部分の外壁の長さを知る必要があります。
外壁の長さは図面に書かれているため、図面が手元にある方はそれを確認してください。図面がない場合は、メジャーを使い周囲を測るほか、グーグルマップを使って測る方法もあります。
グーグルマップを使って測る方法は、本記事の手順① グーグルマップで自宅の屋根を表示にて詳しく解説しています。
軒の出の長さ

軒の出とは、外壁から飛び出している屋根部分のことです。外壁の長さと軒の出と長さを合計することで、屋根の長さを測れます。
軒の出の長さを知るためには、図面に書かれているものを確認するか、目視で測るの2択です。図面に書かれていないことも多いため、その場合は目視で測りましょう。
目視の場合は、地上からメジャーを持ち見上げるようにして測ります。外壁の先端をメジャーをあて、軒の出の先端までの長さを確認しましょう。
勾配伸び率
勾配伸び率は、屋根の傾斜度合いごとに数値が決められています。そのため、自分で求める必要はありません。
一般的に、勾配が緩やかであれば1.1、勾配が急であれば1.2といったざっくりとした数値でも求めることができます。勾配の緩急は、パッと見の印象のほか、近隣の屋根と比較すると判断しやすくなるでしょう。
より正確に屋根面積を知りたいときには、下記の傾斜度合いごとの勾配伸び率を使います。
| 屋根勾配(傾きの角度) | 勾配伸び率 |
|---|---|
| 3.5寸(約19°) | 1.050 |
| 4.0寸(約22°) | 1.077 |
| 4.5寸(約24°) | 1.097 |
| 5.0寸(約27°) | 1.118 |
| 5.5寸(約20°) | 1.141 |
| 6.0寸(約31°) | 1.166 |
| 6.5寸(約33°) | 1.193 |
図面がある場合、下記のようなマークが書かれていると思います。

これが屋根の勾配を表すものです。直線距離に対してどのくらい傾斜しているのかを示しています。通常、勾配は「寸」と表され、上の図の場合だと右から4.5寸・5寸、6寸です。
4.5寸の場合は、1.097という勾配伸び率で計算することになります。
【図面あり】屋根面積の正確な求め方
家の図面が手元にある場合、その数値をもとに屋根面積を計算するのが正確です。
図面には平面図と立面図がありますが、どちらを見るかによって計算方法が異なります。
下記は平面図と立面図の例となりますので、お手元の図面がどちらか見比べてください。


それでは、平面図と立面図ごとに、屋根面積の計算方法を解説していきます。
手順① 図面の数値を確認
まずは、図面に書かれてる数字から屋根面積の計算の必要なものを確認していきます。
平面図の場合
平面図では、先ほどご紹介した「屋根の投影面積」×「勾配伸び率」で求めます。
屋根投影面積は、屋根を真上から見た図です。1階部分の外壁の長さ+軒の出の長さを足し、タテとヨコをかけることで屋根投影面積を求められます。そのため、平面図で1階部分のタテヨコの長さと軒の出の長さを確認しましょう。
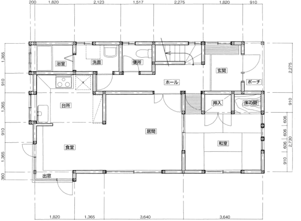
ここでは、例として下記の平面図を使います。

各部位ごとの長さが書かれていますので、タテとヨコの長さを足し合わせます。この図面では、タテの長さが6.275m、ヨコが22.765mであることが分かりました。多くの場合、図面の数字はmm単位であることに注意してください。
この長さに軒の出の長さを足します。軒の出の長さは平図面に記載がないことも多く、その場合は目測で測りましょう。ここでは、軒の出が0.5mであると仮定します。
軒の出を0.5mとすると、タテとヨコはそれぞれ6.775m、23.265mとなります。ここで、タテとヨコを掛け合わせて屋根投影面積を出します。
6.775×23.265 = 157.620375m となり、屋根投影面積は約157.6㎡であることが分かりました。
立面図の場合
立面図の場合は、方向の異なる2つの図面を用意します。
ここでは、例として下記の立面図を使います。

立面図は、通常1/100スケールで描かれています。そのため、図面に定規を当てた長さ×100で、実際の長さを算出可能です。
今回の屋根は、三角形と台形が組み合わさっている寄棟(よせむね)という形です。つまり、三角形の面積(底辺×高さ÷2)×2と、台形の面積(底辺+上底×高さ÷2)×2を足すことで全体の屋根面積を出すことができます。
屋根では、高さ = 斜面の長さであることに注意してください。各面の高さを測るときは、もう一方の方向から見た斜面の長さを高さとして計算します。
各辺の長さを測り終えたら、実際に計算していきます。
手順② 各数値から屋根面積を計算
平面図から求める
先ほど求めた屋根投影面積に、勾配伸び率をかけていきましょう。
勾配伸び率は投影面積に対する実際の屋根面積の比率で、数値はあらかじめ決められています。
図面を見ると右記のようなマークが書かれている場合がありますが、これは勾配率を示すものです。
この場合は10mに対して4.5mの勾配がついているという表記で、4.5寸と表します。下記の表と見比べると、4.5寸の勾配伸び率は1.079です。
| 屋根勾配(傾きの角度) | 勾配伸び率 |
|---|---|
| 3.5寸(約19°) | 1.050 |
| 4.0寸(約22°) | 1.077 |
| 4.5寸(約24°) | 1.097 |
| 5.0寸(約27°) | 1.118 |
| 5.5寸(約20°) | 1.141 |
| 6.0寸(約31°) | 1.166 |
| 6.5寸(約33°) | 1.193 |
ここでは、勾配伸び率を1.079とします。
屋根投影面積が157.6㎡、勾配伸び率が1.079と分かったので、この2つをかけましょう
157.6 ×1.079 = 170.0504となり、屋根面積は約170㎡であることが分かりました。
立面図から求める
先ほど立面図上で測った各辺の長さから、屋根面積を出していきます。
まずは、三角形の部分の面積を求めていきましょう。
三角形の面積は、底辺×高さ(屋根の場合は斜面の長さ)÷2です。そのため、底辺が6mで斜面の長さが4mだった場合は、6×4÷2 = 12㎡。屋根が寄棟の場合は三角形の部分が反対側にもあるので、合わせて24㎡となります。
続いて、台形部分の面積を求めます。
台形の面積は、(下底+上底)×高さ(屋根の場合は斜面の長さ)÷2です。そのため、下底が15m、上底が7m、斜面が4.5mだった場合、(15+8)×4.5÷2 = 51.75㎡。反対側と合わせると、103.5㎡となります。
三角形の台形の部分の面積を合計すると、屋根面積は127.5㎡であることが分かりました。
【図面なし】屋根面積の正確な求め方
リフォーム費用は「屋根面積×塗料や素材の単価」で計算されます。
そのため、リフォーム費用が適正かどうかを確かめるには、屋根面積を知ることが重要です。
住宅の屋根面積は、以下の式でかなり正確なものがわかります。
屋根面積 = 屋根投影面積 × 1.1
計算の方法は、
- ネットで自宅屋根の航空写真を表示
- 屋根の辺の長さを出す
- 辺の長さから平面積を計算し、1.1倍する
の3つのステップから成り立っています。
この手順なら、家の図面などは一切不要です。
順を追って、今からくわしくご説明します。
手順① グーグルマップで自宅の屋根を表示

まずはじめに、あなたの家の屋根がどんな形をしているかを投影図でチェックします。
「屋根投影図」とは、屋根を真上から見たときに見えるシルエットのことです。
太陽が真上から家を照らしたときに、地面にできる影の形と考えるとわかりやすいでしょう。
屋根を上から見下ろした状態は「Google Map(グーグルマップ)」を使って誰でも簡単に確認できます。
本記事ではスマホアプリの画面を例に手順をやさしく解説します。
なお、パソコンでも操作はほとんど変わりませんのでご安心ください。
本解説では、仮の住所・住宅を使って、実際に屋根面積がわかるまでの流れをお見せします。
①-1.グーグルマップを開き、自宅住所を検索

まずはアプリからグーグルマップを開き、画面上部の欄に自宅住所を入力して検索します。
①-2.航空写真モードに切り替える
![]() | ![]() |
マップに自宅の地点が表示されたら、画面右上の「丸いボタン」→あらわれたメニューの「航空写真」の文字の順にタップします。
①-3.自宅の中心に航空写真を拡大
![]() | ![]() |
表示が実写に切り替わったら、画面をピンチイン(指先を広げる動作)して自宅の屋根を大きく表示させます。
こうして表示された自宅の屋根のクローズアップ写真が、あなたの家の屋根投影図です。
続く投影図の各辺の長さのステップも、同じグーグルマップの画面上でわかってしまいます。
手順② 屋根の各辺の長さを測る

屋根の投影図(平面図)がわかったら、グーグルマップ上で各辺の長さを導き出します。
この長さは、つぎのステップで面積の計算に使用します。
手順は以下のとおりです。
なお、複雑な形状をした屋根の方でも役に立つよう、あえて単純な長方形ではない屋根でご説明しています。
②-1.表示の傾きを調整する

自宅屋根が大きく写ったら、指先で回転させて傾きをなるべくなくします。
②-2.縮尺表示と屋根を比べ、実寸を得る

続いて、画面右下に表示されている実寸(縮尺)表示をもとに、屋根の辺の実際の長さを測ります。
航空写真を動かして、実寸表示と屋根の辺をピッタリ重ねるとよいでしょう。
プリントアウトすると楽

もしプリンターがあれば、手順「②-2」が済んだ画面のスクリーンショットを撮って、それをプリントアウトしましょう。紙に定規当てて作業をすれば、長さと実寸表示を比べやすいでしょう。
②-3.繰り返して、辺の長さをひとつずつ得る

「②-1」と「②-2」の作業を辺ひとつずつに対して行ない、投影図にある各辺の長さを把握します。
少し面倒ですが、回転と縮尺表示にピタッとつける作業を繰り返しましょう。
上図の例では、縦の辺が「8.1m」と「7.6m」、横の辺が「8.9m」と「2.0m」とそれぞれ判明し、面積を計算する準備ができました。
手順③ 屋根の投影面積を計算し1.1倍する

実際の屋根には勾配(傾き)があります。
平面図から求めた面積は傾きが反映されていませんので、ここに「1.1」を掛けることで実際の屋根面積に近い値になります。
面積の計算、傾きを反映する掛け算、それぞれを見ていきましょう。
③-1.辺の長さをもとに「投影面積」を計算

手順②で割り出した辺の長さをもとに、投影図の面積(「投影面積」)を計算します。
長方形の面積は「縦×横」で求められます。
複雑な形状の屋根でも、屋根をいくつかの長方形に分け、最後にそれを足せばれば計算できるでしょう。
上図の例では、
計算式
右側の範囲(黄色): 8.9m×8.1m=72.09㎡
左側+右側(合計): 15.2㎡+72.09㎡=87.29㎡
となり、屋根の投影面積は87.29㎡と出ました。
③-2.勾配伸び率「1.1」を掛ける
最後に、投影面積に「1.1」(勾配伸び率)を掛ければ、実際の屋根面積(近似値)が判明します。
計算式
= 87.29×1.1
= 約96㎡(96.019㎡)
以上の結果から、屋根面積は約96㎡とわかりました。
つまり、屋根工事の見積書に記載されている「数量」や「施工面積」などの項目の数値が、96から大きく離れていなければ、作業量のごまかしはないとみてよいでしょう。
勾配伸び率とは?
勾配伸び率とは、投影面積に対する実際の屋根面積の比率のことで、屋根の勾配が急であればあるほど大きな数値になります。
| 屋根勾配(傾きの角度) | 勾配伸び率 |
|---|---|
| 3.5寸(約19°) | 1.050 |
| 4.0寸(約22°) | 1.077 |
| 4.5寸(約24°) | 1.097 |
| 5.0寸(約27°) | 1.118 |
| 5.5寸(約20°) | 1.141 |
| 6.0寸(約31°) | 1.166 |
| 6.5寸(約33°) | 1.193 |
日本の住宅の屋根勾配は、3.5寸(約19度)~6.5寸(約33度)の間であることがほとんどです。
これらの勾配に対応する伸び率は約1.05~1.2と、あまり差はないことがわかります。
そこで本手順では、計算を簡単にするため勾配伸び率を「1.1」としました。
自宅の屋根勾配が分かっている場合は、上の表からもっとも近い勾配伸び率を代入すると、より正確な屋根面積が求められます。
屋根面積を簡単に求める方法
まずは、図面のいらない簡単な屋根面積の計算方法をご紹介します。
「1階の床面積」から屋根面積を概算する
屋根面積を求めるなら、1階部分の床面積をもとにした計算方法が最も簡単です。
1階の床面積に、屋根の傾きが「緩やか」なら「1.1」、「急」なら「1.2」を掛けることで、おおまかな屋根面積を概算することができます。
計算式
屋根の傾きが急な場合 → 屋根面積 = 1階の床面積 × [text style=”15″ extra-class=”u-txt–strong”]1.2[/text]
1階の床面積(㎡)がわからない場合は、家の坪数に「3.3」をかけることでも求められます。
屋根の傾きごとに、計算方法と坪ごとの結果について詳しく解説します。
屋根の勾配が緩い場合
ご自宅の屋根が緩やかな場合、下記の計算式で大まかな屋根の面積が分かります。
1階の床面積×1.1
下記は、20坪~60坪までの計算結果を5坪きざみでを表にまとめたものです。
| 家の坪数 | 屋根面積(勾配が緩やか) |
|---|---|
| 20坪 | 79.2㎡ |
| 25坪 | 99.0㎡ |
| 30坪 | 118.8㎡ |
| 35坪 | 138.6㎡ |
| 40坪 | 158.4㎡ |
| 45坪 | 178.2㎡ |
| 50坪 | 198.0㎡ |
| 55坪 | 217.8㎡ |
| 60坪 | 237.6㎡ |
屋根の勾配が急な場合
ご自宅の屋根が急な場合、下記の計算式で大まかな屋根の面積が分かります。
1階の床面積×1.2
下記は、20坪~60坪までの計算結果を5坪きざみでを表にまとめたものです。
| 家の坪数 | 屋根面積(勾配が急) |
|---|---|
| 20坪 | 99㎡ |
| 25坪 | 123.8㎡ |
| 30坪 | 148.5㎡ |
| 35坪 | 173.3㎡ |
| 40坪 | 198.0㎡ |
| 45坪 | 222.8㎡ |
| 50坪 | 247.5㎡ |
| 55坪 | 272.3㎡ |
| 60坪 | 297.0㎡ |
瓦の枚数から屋根面積を求める
瓦屋根のお住まいのみに使える方法です。
瓦の枚数を数えて「53」で割ると、おおよその屋根面積が求められます。
計算方法は以下のとおりです。
計算式
このままでは、単位が「坪」なので使いづらいかもしれません。
見積もり書で使われる[text style=”15″ extra-class=”u-txt–strong”]平米(㎡)単位に直すには、数値を3.3倍[/text]してください。
この方法は、瓦屋根では1坪あたり約53枚の瓦が使われていることを利用したものです。
屋根面積の計算が不安な場合は?
ここまででご紹介した方法を使えば、自宅の正しい屋根面積を把握し、工事の見積もり金額にごまかしがないかを見抜くことができるはずです。
それでも不安が残る場合や、計算が合っているか自信がない方に向けて、当編集部では[cta position=”link” text=”屋根工事費用の無料相談窓口”]を設けています。
はじめから信頼できる業者に依頼できれば、屋根面積を計算したり、見積もり金額の裏を取ったりする手間そもそもが必要ありません。
ヌリカエでは、全国の信頼できる業者もご紹介できますので、そういったお問い合わせもお気軽にどうぞ。
以上、本記事がお役に立てば幸いです。
あなたの住宅リフォームの成功をお祈りしております。
参考文献
- 建築工事研究会『積算資料ポケット版 リフォーム編 2022年度版』一般社団法人経済調査会 2021 p.133「屋根面積算出のための勾配伸び率」





